At Kalyan Properties, we believe that real estate is more than just land and buildings – it’s about creating spaces where dreams take root and futures grow. With a strong commitment to trust, transparency, and quality, we specialize in offering curated properties and farmlands that blend nature, comfort, and long-term value.
Schedule a VisitLive amidst nature’s calm.
Connect & celebrate together.
Leisure & fun, indoors and out.
Refresh and relax every day.

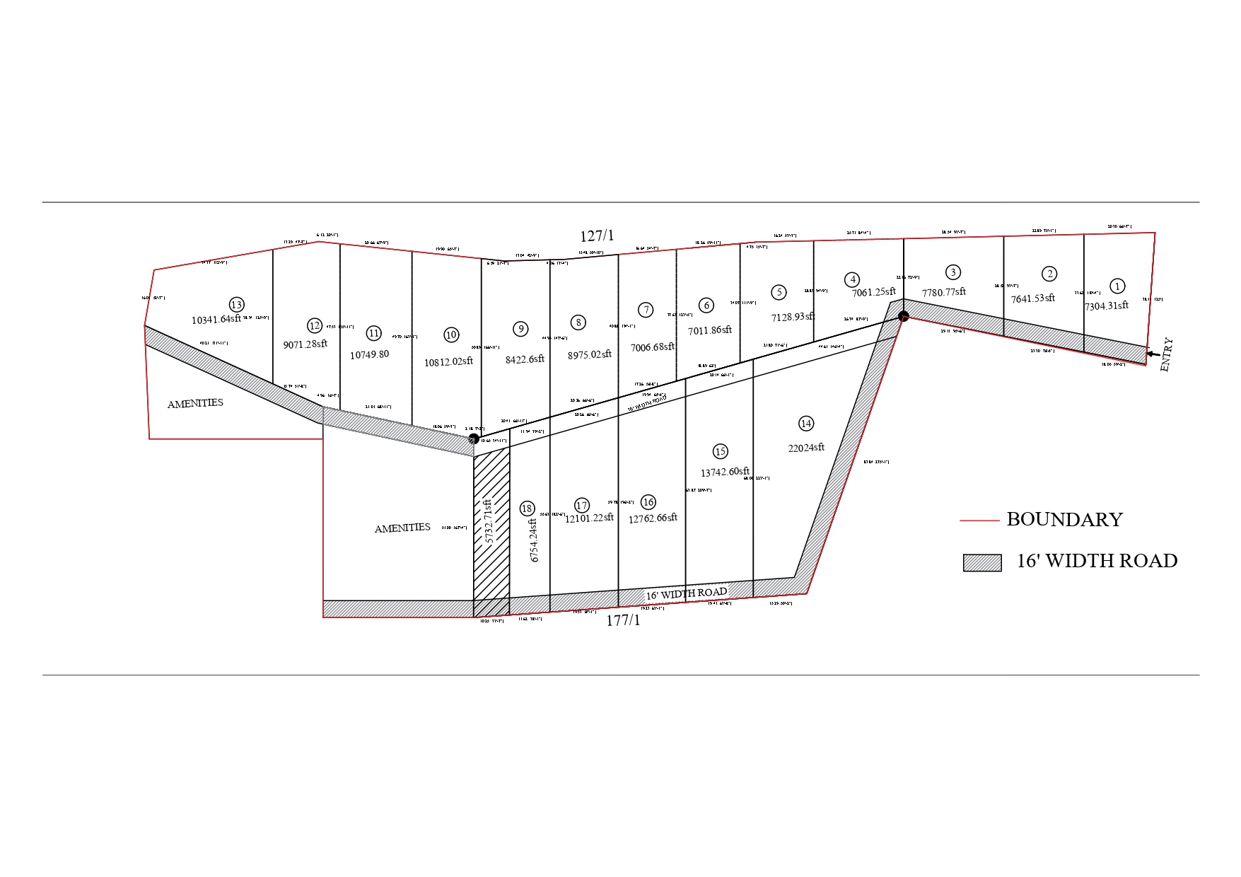
Discover Vandanam – An exclusive farmland project by Kalyan Properties, surrounded by lush forests and designed for peaceful living.
A thoughtfully designed space to host gatherings, celebrate special occasions, or simply relax with your community.
Create unforgettable memories with cozy bonfire nights, laughter, and stories under the starry sky.
Dive into a refreshing pool that’s perfect for leisure, recreation, or just unwinding on a sunny day.
Stay worry-free with round-the-clock surveillance and professional security ensuring complete peace of mind.
Keep your surroundings secure with an elevated watch tower offering a panoramic view of the property.
A welcoming space to enjoy meals together, designed to bring families and communities closer.
A fully equipped kitchen for group cooking, events, and community gatherings with ease.